Automation

Computational Infrastructure: Cross-Platform Modeling Automation
To overcome the traditional disconnect between infrastructure design and detailed structural modeling, I developed a bespoke automation suite that synchronizes Civil 3D inputs directly with Revit. This high-level script automates the generation of complex culvert structures for the Spine Water Transmission project, ensuring that every structural element—including columns and beams—precisely follows the specified culvert slopes. By extending these capabilities to linear MEP and pipeline supports, we transformed a labor-intensive manual process into a streamlined, error-free digital workflow.
Technical Highlights:
Civil 3D to Revit Integration: Seamlessly translates alignment and profile data into detailed BIM elements.
Slope-Adaptive Structural Logic: Automatically calculates and applies variable slopes to columns, beams, and culvert segments.
Comprehensive Infrastructure Coverage: Includes automated placement for pipelines, supports, and all associated linear MEP components.
Optimization & Refinement Tools: Secondary scripts designed to modify final outputs and accelerate the end-to-end modeling lifecycle.
Automating Information Excellence for the RCJ Digital Twin
In the transition to sophisticated Digital Twin delivery, managing metadata at scale is often the greatest challenge. For the Royal Commission for Jubail and Yanbu (RCJ), I engineered a comprehensive data governance framework that automates the application of high-level information parameters. This system was designed to harmonize international codification standards with the client’s specific Digital Twin procedural requirements. By developing custom scripts that interpret complex procedural sheets, we were able to systematically populate model elements with precise, verified information, ensuring the model's readiness for its eventual lifecycle as a Digital Twin.
Beyond mere data entry, this workflow leverages smart BIM add-ins to dramatically speed up the information input process across multidisciplinary models. This automated approach eliminates the risk of manual data entry errors and ensures that the final digital asset is a reliable source of truth. To guarantee the highest quality of delivery, I implemented secondary verification scripts that audit the model's information against the initial requirements. This closed-loop system provides a robust, "Code A" compliant delivery process that scales effectively for massive infrastructure projects.



Beyond mere data entry, this workflow leverages smart BIM add-ins to dramatically speed up the information input process across multidisciplinary models. This automated approach eliminates the risk of manual data entry errors and ensures that the final digital asset is a reliable source of truth. To guarantee the highest quality of delivery, I implemented secondary verification scripts that audit the model's information against the initial requirements. This closed-loop system provides a robust, "Code A" compliant delivery process that scales effectively for massive infrastructure projects.
The release of this research on YouTube served as a catalyst for professional outreach, as I received numerous inquiries from global industry experts eager to implement the application in their own workflows. The tool addresses a critical need in the industry: the ability to rapidly verify a model against complex safety codes without the risk of human oversight. By bridging the gap between computational logic and regulatory requirements, this project stands as a testament to the power of research-driven automation in solving real-world architectural challenges.
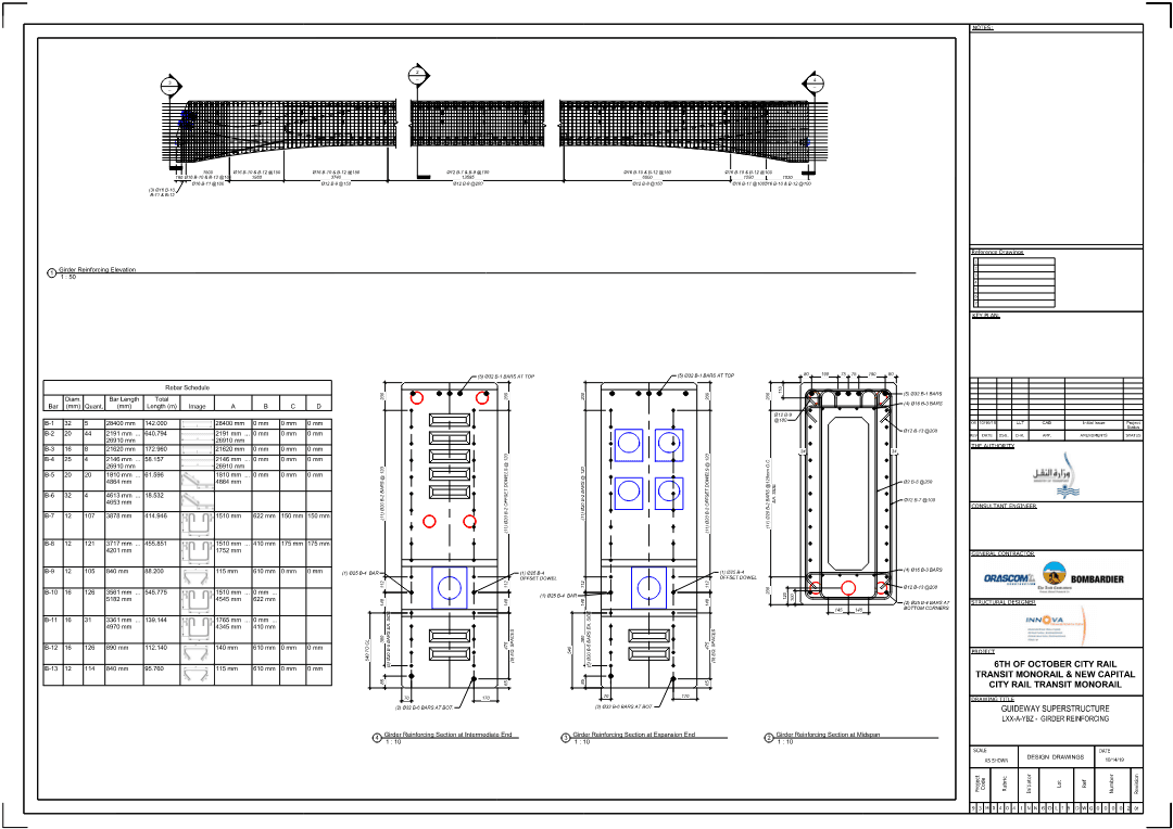
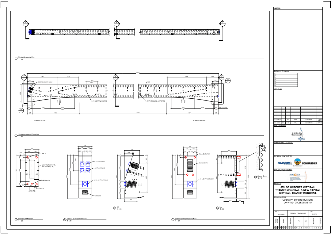
Automated Shop Drawing Production for Cairo Monorail
To meet the aggressive delivery schedule of the Cairo Monorail, I Support the development of a high-performance production suite for the Innova team. We engineered a specialized workflow that integrated custom Revit API development with advanced Excel-driven design fundamentals. By creating "intelligent" parametric families that dynamically respond to structural engineering data, we automated the generation of detailed shop drawings for complex structural elements. This system bridged the gap between raw design calculations and fabrication-ready documentation, ensuring absolute geometric precision across the project's vast alignment.
















